Stone Rest

+

Stone Rest +

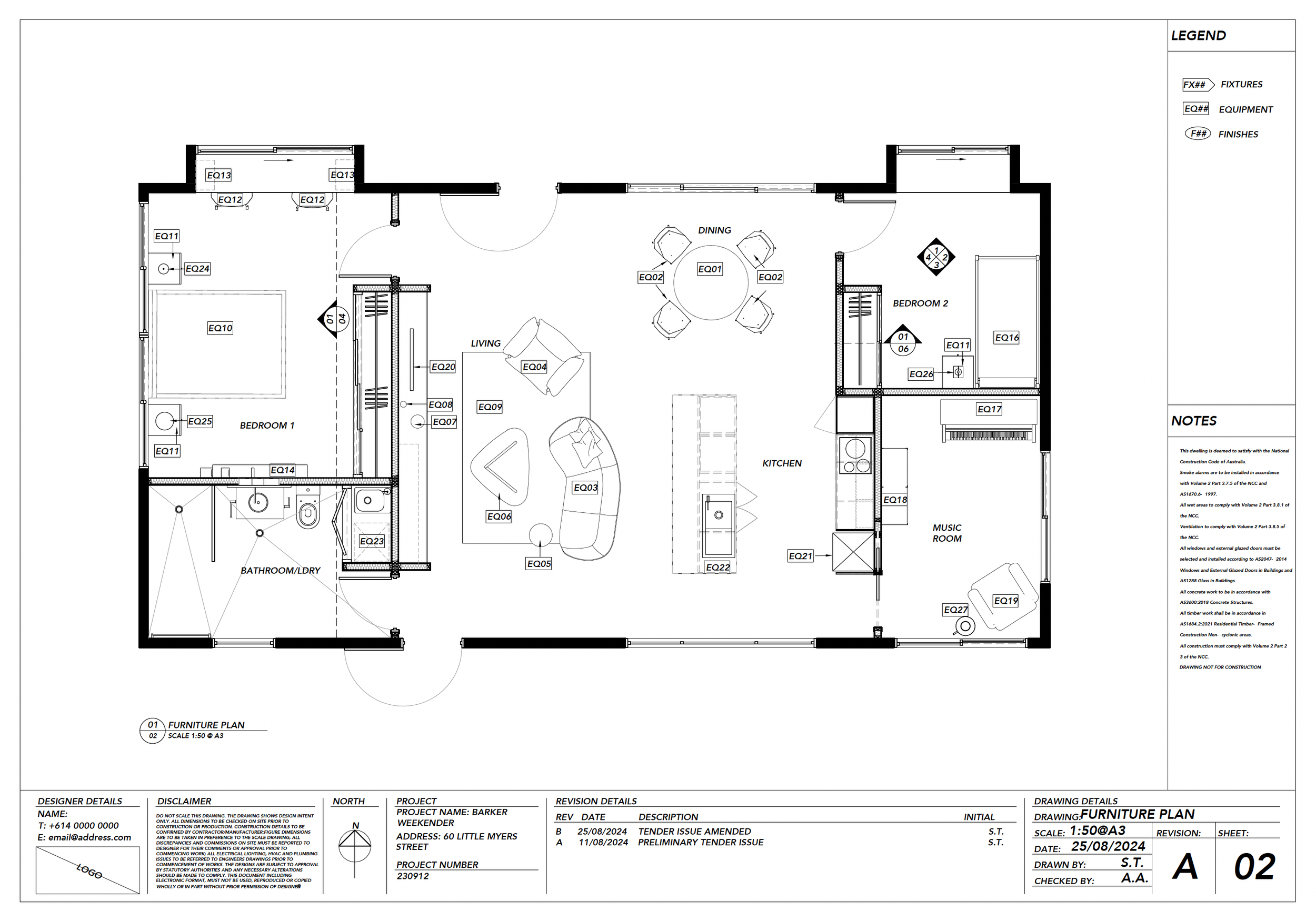
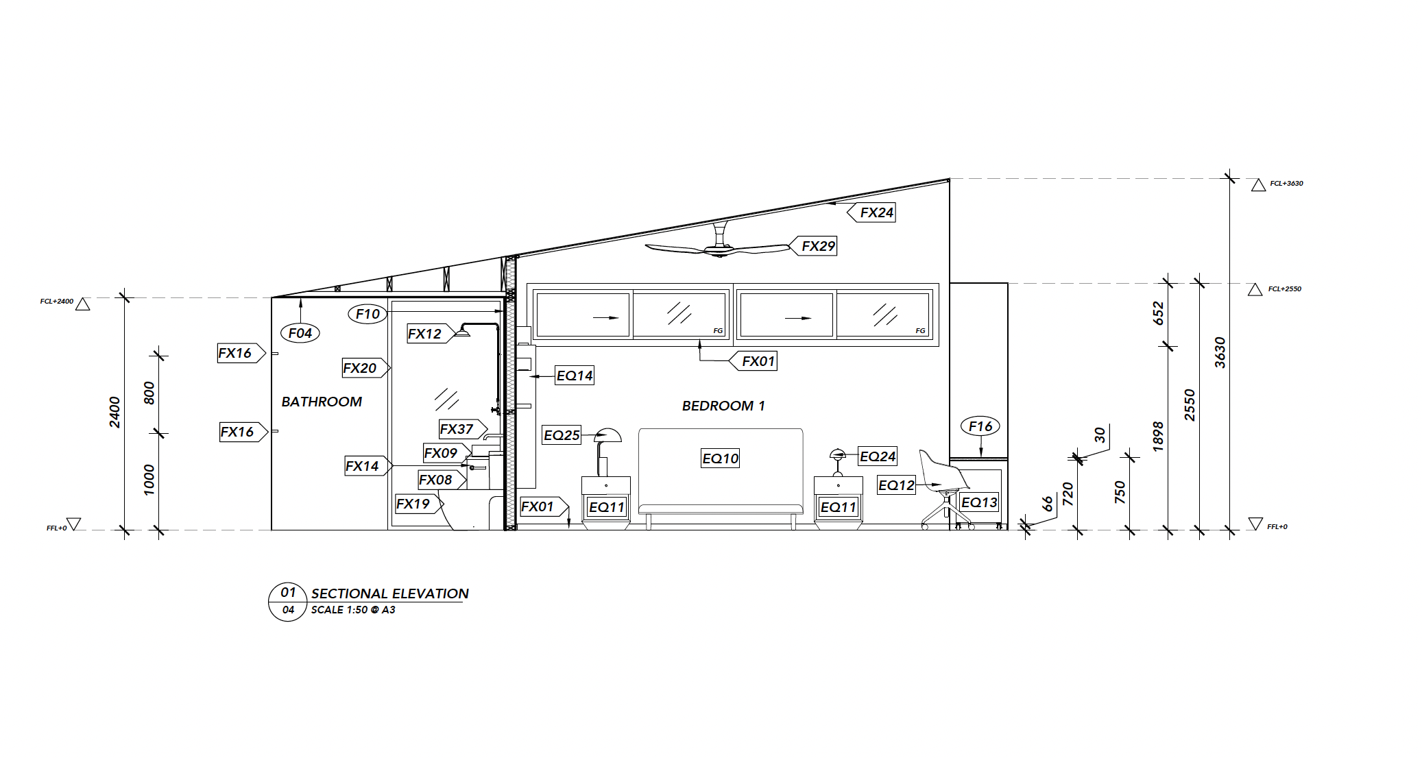
Stone Rest is a two-bedroom studio apartment designed as a weekend retreat.
The project showcases a complete AutoCad package, including plans, elevations, sections, and
joinery details.
The focus was on creating a functional, inviting space within a compact footprint, balancing flow, warmth, and efficiency for modern, flexible living.

RESIDENTIAL
2024
60 LITTLE MYERS STREET 
Previous
Previous

Rose Seidler House